Bremen:
***28357 HB, Ortsteil Lehester-Deich***5 Zi. RH mit Vollkeller
Objekt-Nr.: HBM32














Preis:
280.000 €
Wohnfläche ca.:
112 m²
Grundstück ca.:
174 m²
Zimmeranzahl:
5
Allgemeines:
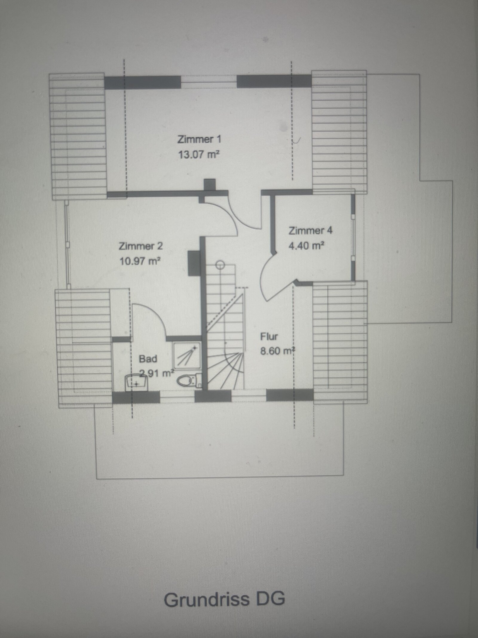
Hier erwartet Sie ein schönes, gepflegtes Reihenhaus mit gemütlicher Atmosphäre in absoluter Toplage. Das Haus bietet hervorragende Stellmöglichkeiten in allen Räumen und ist super aufgeteilt. Im Erdgeschoss befindet sich das großzügige Wohnzimmer mit großem Balkon (der Zugang zum Garten geht durch den Keller), die Küche mit fast 10 qm, der Flur und ein kleines Gäste-WC. Im 1. OG liegen weitere 4 Zimmer und das Bad. Der Vollkeller verfügt über 4 Abstellräume und ein großes Gartenzimmer mit größeren Fenstern. Der Gartenbereich ist klein aber fein mit einem überdachten Freisitz/Terrasse.
Extras und Modernisierungen:
Toplage, 5 Zimmer plus beheizbares Gartenzimmer, Garten, überdachter Freisitz, zusätzlicher Balkon, in diversen Bauabschnitten wurde bis heute immer wieder etwas erneuert, 2008 Heizungsaustausch, die vorhandenen Kunststofffenster wurden 2022 eingebaut, Dachgeschoss verfügt über zusätzlichem Abstellbereich, 2022 Einblasdämmung der oberen Geschossdecke.
Haben wir Ihr Interesse geweckt? Für eine Besichtigung stehen wir gerne zur Verfügung.
Haustyp: Reihenmittelhaus
Etagenanzahl: 3
Provisionspflichtig: ja
Provision: 3,57 % inkl. MWSt jeweils für Käufer und Verkäufer
Nutzfläche ca.: 56 m²
Anzahl Schlafzimmer: 4
Anzahl Badezimmer: 1
Balkon: 1
Terrasse: 1
Keller: voll unterkellert
Qualität der Ausstattung: normal
Baujahr: 1960
Verfügbar ab: nach Absprache
Zustand: gepflegt
Bei Abschluss eines Kaufvertrages wird eine Käuferprovision in Höhe von 3,57 % inklusive 19 % Mehrwertsteuer auf den Kaufpreis vom Käufer fällig. Verdient und fällig mit Beurkundung des notariellen Kaufvertrages. Der Immobilienmakler hat einen provisionspflichtigen Maklervertrag mit dem Verkäufer in gleicher Höhe abgeschlossen.
Die von uns gemachten Informationen beruhen auf Angaben des Verkäufers bzw. der Verkäuferin. Für die Richtigkeit und Vollständigkeit der Angaben kann keine Gewähr bzw. Haftung übernommen werden. Ein Zwischenverkauf und Irrtümer sind vorbehalten.
Wir weisen auf unsere Allgemeinen Geschäftsbedingungen hin. Durch weitere Inanspruchnahme unserer Leistungen erklären Sie die Kenntnis und Ihr Einverständnis.
Das könnte Ihnen auch gefallen
28357 Bremen
































































































