Bremen:
***Bremen-Vahr, 2 Doppelhaushälfte nebeneinander mit 2 Garagen in Toplage
Objekt-Nr.: HBH4547

Beide Doppelhaushälften

Haus 1

Haus 1

Haus 1

Haus 1

Haus 1

Haus 1

Haus 1

Haus 1

Terrasse Haus 1

Terrasse Haus 1

Garten

Garten

Haus 2

Haus 2

Haus 2

Haus 2

Haus 2

Haus 2

Haus 2

Straße

Straße

Haus 1 Erdgeschoss

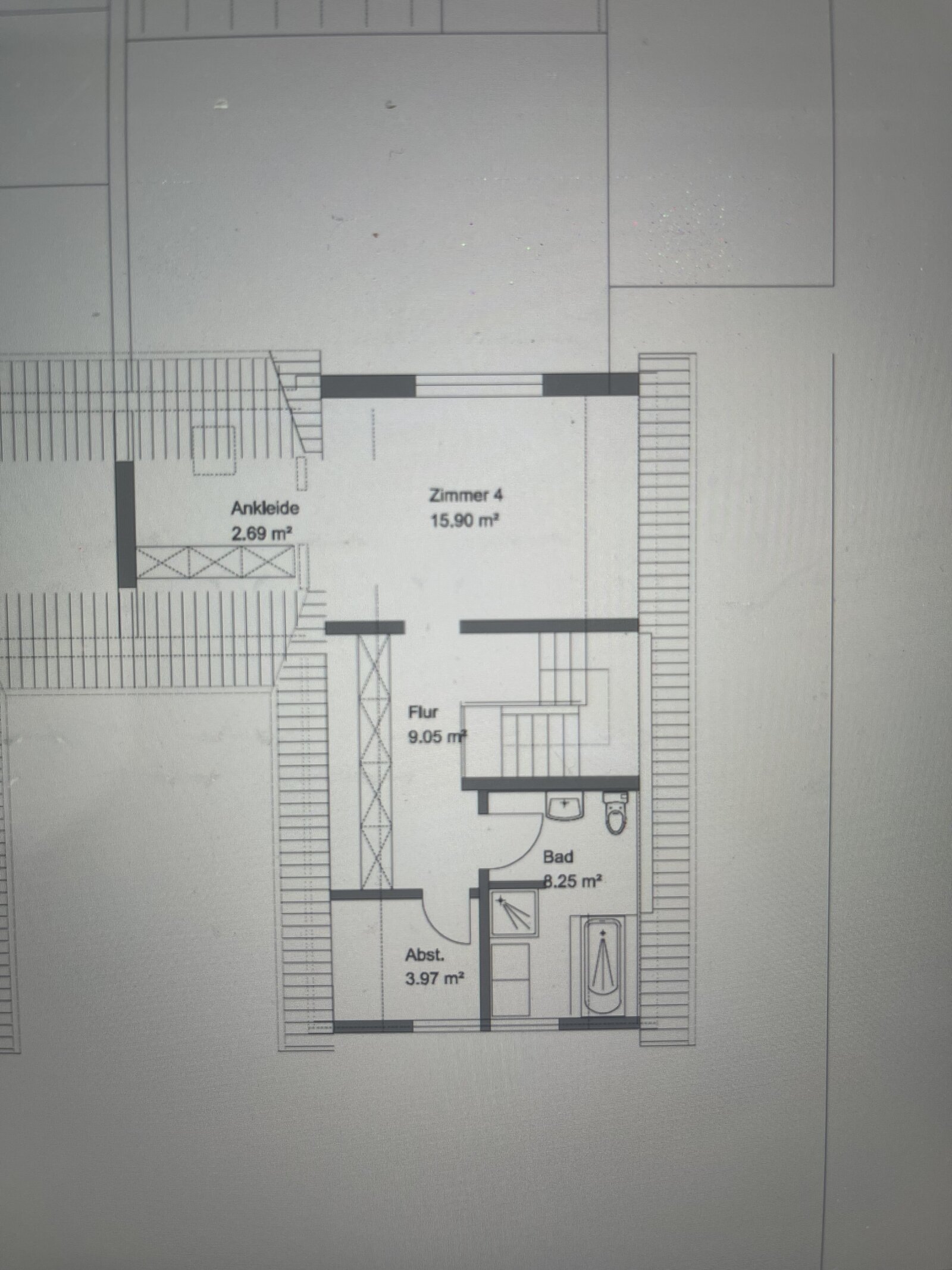
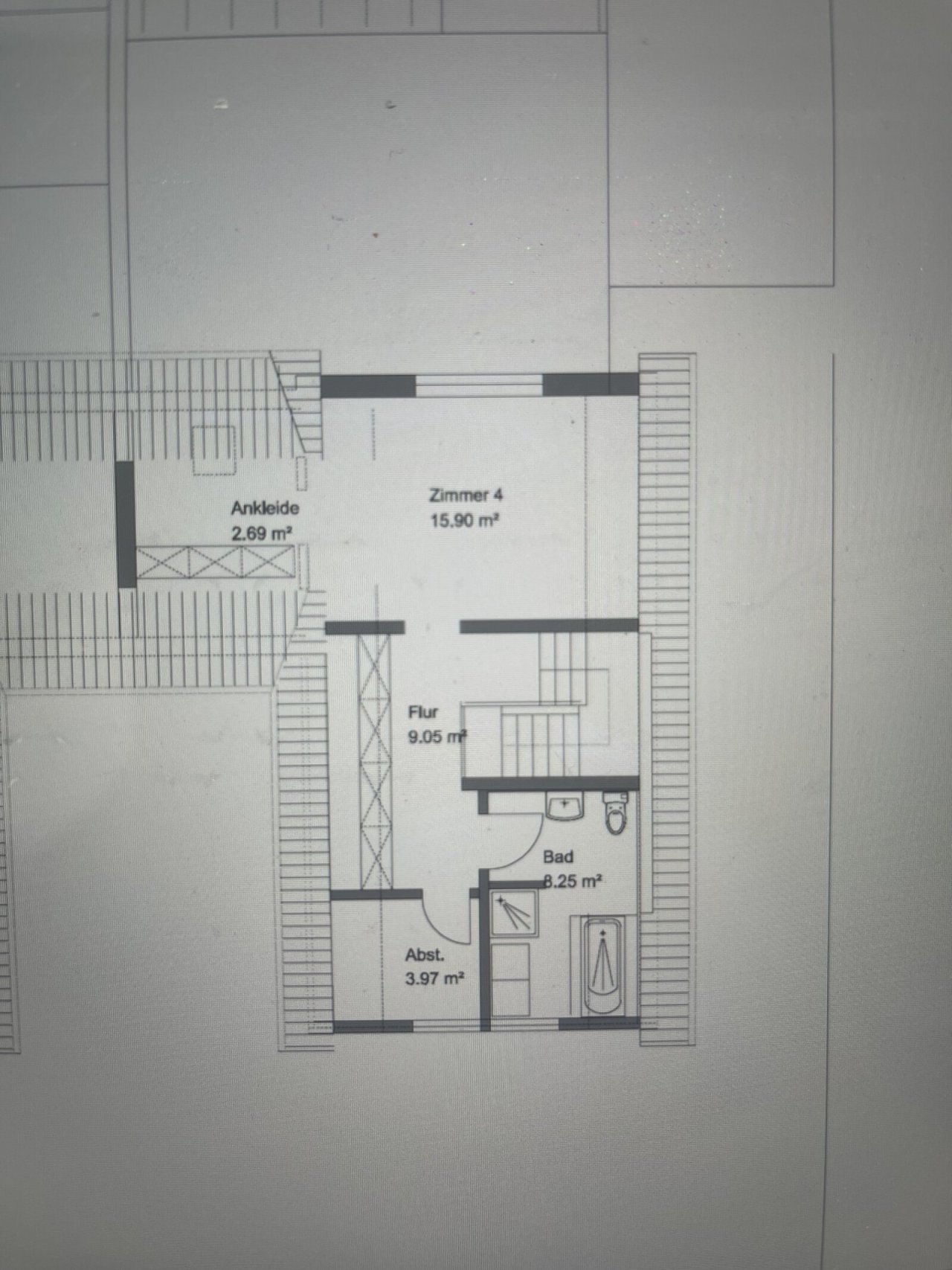
Haus 1 Obergeschhoss

Haus 2 Erdgeschoss

Haus 2 Obergeschoss


























Preis:
448.000 €
Wohnfläche ca.:
225 m²
Grundstück ca.:
760 m²
Zimmeranzahl:
6,5
Beschreibung: Die Immobilie verfügt über 2 nebeneinanderliegende Doppelhaushälften.…
Haus 1: Das Haus rechts erstreckt sich über 2 Wohn-Etagen plus Teilkeller und bietet insgesamt 3 großzügige Räume und 2 kleinere. Im Erdgeschoss erwartet Sie das helle, große Wohnzimmer, welches viel Platz für gemütliche Stunden bietet, die Küche mit hervorragender Einbauküche (mit verglaster, verschiebbarer Scheibe zum Wohnzimmer), ein separates Elternschlafzimmer mit anliegendem Duschbad, der Flur und ein Abstellbereich. Im 1. Obergeschoss liegen ein großes Zimmer, von dem ein zusätzlicher kleiner Raum abgeht, der zur Zeit als Ankleidezimmer dient. Hier befinden sich auch sehr praktische Einbauschränke. Aber natürlich lassen sich diese beiden Räumlichkeiten auch anders nutzen. Ferner befindet sich auf der Etage noch ein weiteres kleines Zimmer, sowie das Bad mit Wanne, Dusche und Bidet. Der kleine Keller verfügt über einen Raum und bietet Ihnen zusätzlichen Stauraum. Der Dachboden ist begehbar, aber nicht ausbaufähig, er dient auch als Stauraum. Sie genießen hier die Vorzüge einer ruhigen Wohngegend und profitieren gleichzeitig von einer hervorragenden Anbindung an die Infrastruktur. Der Brenner der Heizung ist von 2004, der Wärmetauscher von 1982, ein Austausch der Heizung nach GEG ist laut Schornsteinfeger nicht erforderlich, es handelt sich hier um einen Niedertemperaturheizkessel mit witterungsgeführter Regelung. Eine Garage mit elektrischem Tor ist hier selbstverständlich. Die Wohnfläche für dieses Objekt beträgt 130 qm plus 380 qm Grundstück.
Haus 2: Die Immobilie erstreckt sich über 2 Wohn-Etagen plus Teilkeller und bietet insgesamt 2 großzügige Räume. Im Erdgeschoss erwartet Sie das helle, große Wohnzimmer, welches viel Platz für gemütliche Stunden bietet, die Küche mit hervorragender Einbauküche und der Flur. Im 1. Obergeschoss liegen ein großes Zimmer, sowie das Bad. Der kleine Keller verfügt über einen Raum und bietet Ihnen zusätzlichen Stauraum. Eine Garage und ein Carport sind vorhanden. Die Ölheizung ist von 2010. Die Wohnfläche für dieses Objekt beträgt 94 qm plus 380 qm Grundstück. Diese Hälfte ist zur Zeit vermietet.
Lage: Die Doppelhaushälften befinden sich in einer wunderbaren Wohnstraße und bietet Ihnen eine Wohnlage, die zentral, aber ruhig ist. Straßenbahn und Einkaufsmöglichkeiten (z.B. Berliner Freiheit) befinden sich in der Nähe.
Haustyp: Doppelhaushälfte
Etagenanzahl: 3
Provisionspflichtig: ja
Provision: 3,57 % inkl. MWSt jeweils für Käufer und Verkäufer
Anzahl Schlafzimmer: 5
Anzahl Badezimmer: 3
Terrasse: 2
Keller: teil unterkellert
Anzahl der Parkflächen: 1 x Carport; 2 x Garage
Qualität der Ausstattung: normal
Baujahr: 1962
Zustand: gepflegt
Bei Abschluss eines Kaufvertrages wird eine Käuferprovision in Höhe von 3,57 % inklusive 19 % Mehrwertsteuer auf den Kaufpreis vom Käufer fällig. Verdient und fällig mit Beurkundung des notariellen Kaufvertrages. Der Immobilienmakler hat einen provisionspflichtigen Maklervertrag mit dem Verkäufer in gleicher Höhe abgeschlossen.
Die von uns gemachten Informationen beruhen auf Angaben des Verkäufers bzw. der Verkäuferin. Für die Richtigkeit und Vollständigkeit der Angaben kann keine Gewähr bzw. Haftung übernommen werden. Ein Zwischenverkauf und Irrtümer sind vorbehalten.
Wir weisen auf unsere Allgemeinen Geschäftsbedingungen hin. Durch weitere Inanspruchnahme unserer Leistungen erklären Sie die Kenntnis und Ihr Einverständnis.
Das könnte Ihnen auch gefallen















































































